Sold

2 Morningcloud Vale, Willetton

UNDER OFFER!

GREAT PARK VIEWS!

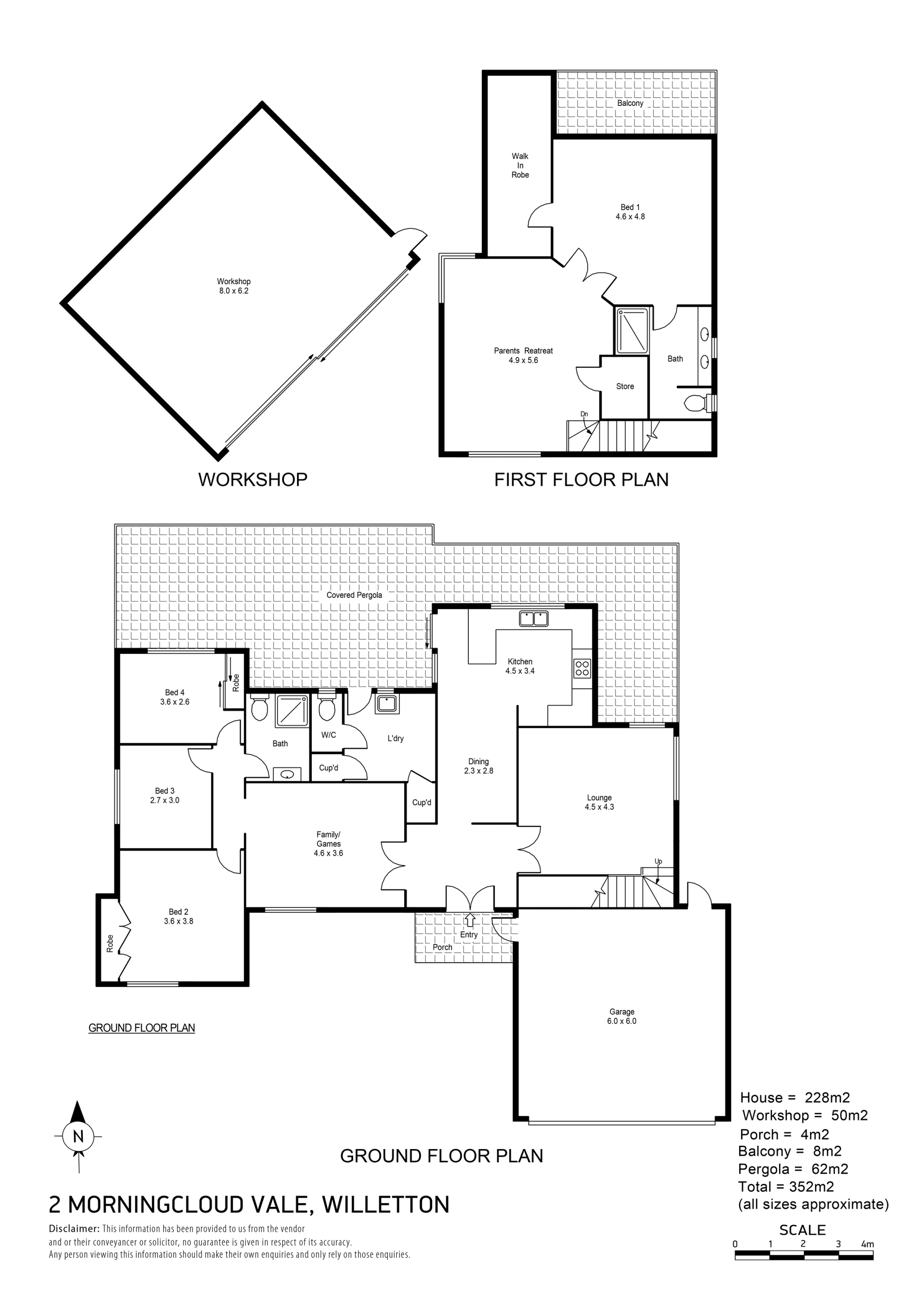
This fabulous double-storey 4x2.5 large family home comprises of three living areas including a family/games room, lounge and parents’ retreat, good sized bedrooms and a refurbished kitchen. Upstairs, apart from the spacious retreat area, the parents are treated to a large bedroom with walk-in robe, a large ensuite and best of all, great elevated views of the Morningcloud Park behind from their own private balcony.

Well, the kids have their own space too! There is a family/games room area along with their bedrooms and renovated bathroom that form their ‘kids’ wing’.

The backyard is special. Beautifully renovated a few years ago, it features a large pitched patio with timber lined ceilings, a large pool with glass fencing and durable decking, and the man of the house will love the large shed or third garage which comes with its own side gated access.

The property is also located within short walking distances to Willetton Senior High School and Burrendah Primary, Southlands shopping centre, Willetton Library, sports club and basketball stadium, and public buses.

All reasonable offers considered! Don't miss!

Upper level highlights:
Large main bedroom with double-door entry, recessed feature ceiling & walk-in robe including integrated shelving; ensuite equipped with double vanity, shower & toilet
Balcony with views of Morning Cloud Park
Large parents’ retreat area with recessed feature ceiling & split a/c

Lower level highlights:
Spacious formal lounge
Timber floorboards to lounge & family room
Refurbished kitchen with gas cook top & backyard aspect
Dining
Renovated common bathroom with wc & shower; floor-to-ceiling wall tiling
Large family room area or games area; comes with French style door
Three other spacious bedrooms; two equipped with robes

Other highlights:
Within Willetton Senior High School & Burrendah Primary School zones
Short walking distance to schools, parks, sports club, library & public transport
Three toilets
Recently replaced gas hot water storage system
Fabulous outdoor entertaining including large alfresco with durable decking
Easy care gardens
Lovely pool with blanket cover
Huge powered shed or garage
Double garage with automatic door
748 sqm corner green title block
4 2 3 748 m2
Address 2 Morningcloud Vale, Willetton
Price SOLD for $895,000
Property Type Residential
Property ID 398
Category House
Land Area 748 m2

Agent Details

Raymond Chen photo

Raymond Chen

0432 624 120
View Profile