Sold

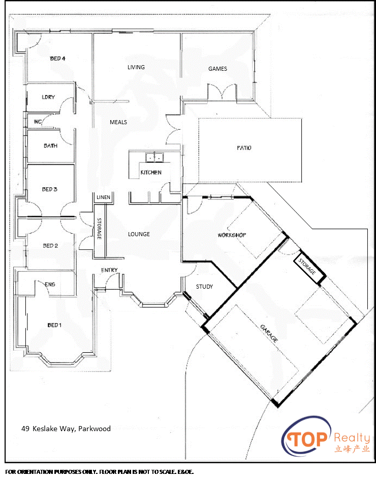
49 Keslake Way, Parkwood

FABULOUS HOME!

Brilliantly located on a corner block within short walking distance to Hossack Reserve, Riverton Forum and public schools is this fabulous large family home that has so much to offer.

At the front of the house, you will find a spacious formal lounge and a separate study and as you head to the back, there is an open plan layout for the kitchen, family living area and dining. There are four spacious bedrooms that all come with built-in robes and a games area or potential theatre for the kids. The good-sized workshop will come in handy if you are into DIY or could be used as a storeroom. The common bathroom, laundry and toilet have been recently renovated.

This home must been seen to be appreciated. Don't miss!

Highlights include:
Formal lounge
Open plan kitchen, dining & living
Family living room with gas heater & wall a/c
Spacious games room or potential theatre
Separate study room
Main bedroom with built-in robes & ensuite
3 minor bedrooms all with built-in robes
Renovated common bathroom, toilet & laundry
Large kitchen with gas cooktop & stone benchtop
Ducted evaporative air-con
Loads of storage cupboards
Spacious workshop or storeroom
Large pitched patio for outdoor entertaining
Gas hot water storage system
Bore reticulated gardens
Double garage with automatic door & rear access
724 sqm corner block
4 2 2
Address 49 Keslake Way, Parkwood
Price SOLD
Property Type Residential
Property ID 34
Category House

Agent Details

Raymond Chen photo

Raymond Chen

0432 624 120
View Profile