Just Listed

Unit 8, 46-48 Vahland Avenue, Riverton

BEAUTIFULLY PRESENTED OVER 55’s VILLA!

This delightful over 55’s home would be perfect for those looking for a comfortable, spacious home in the suburb to retire in. 

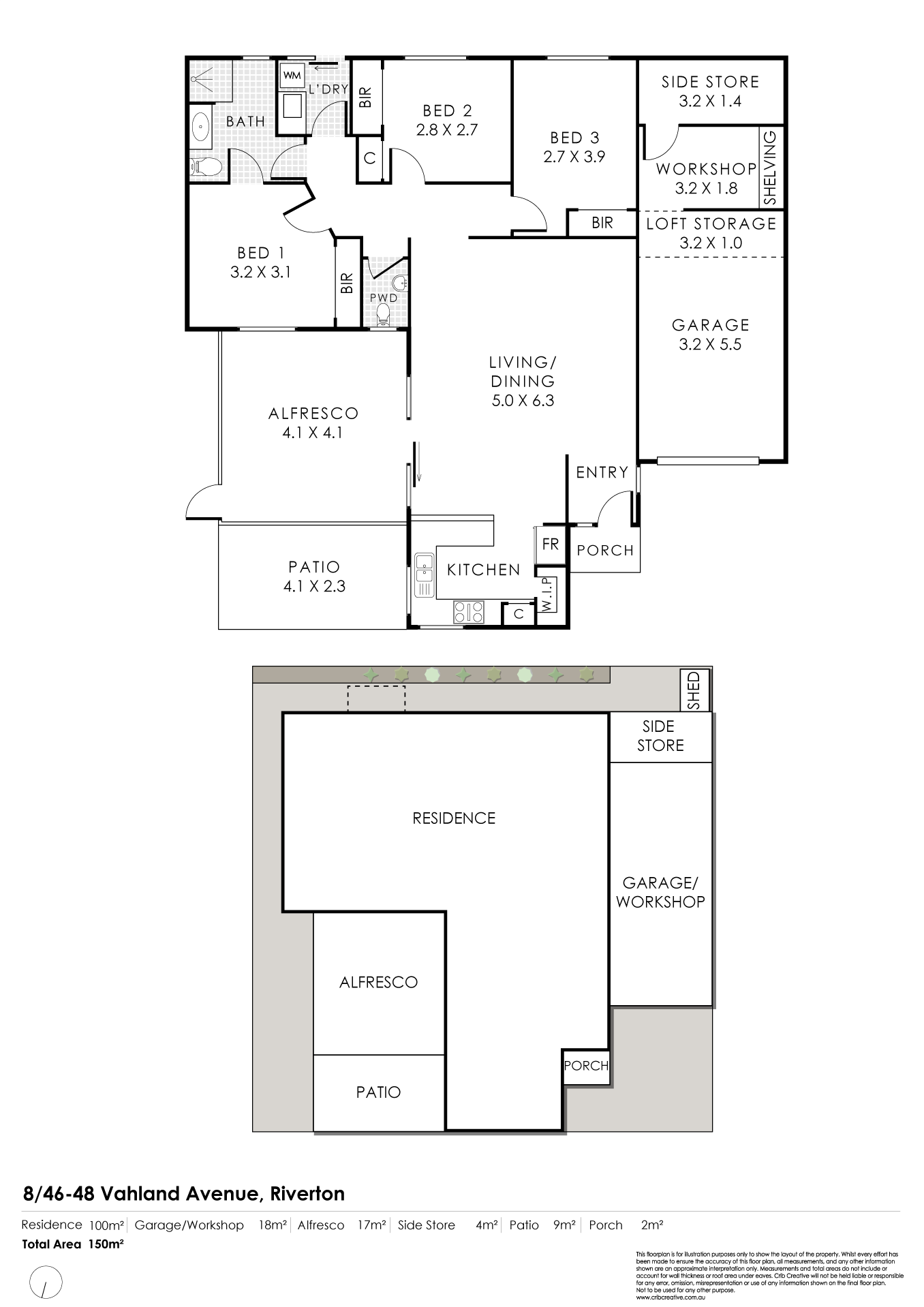
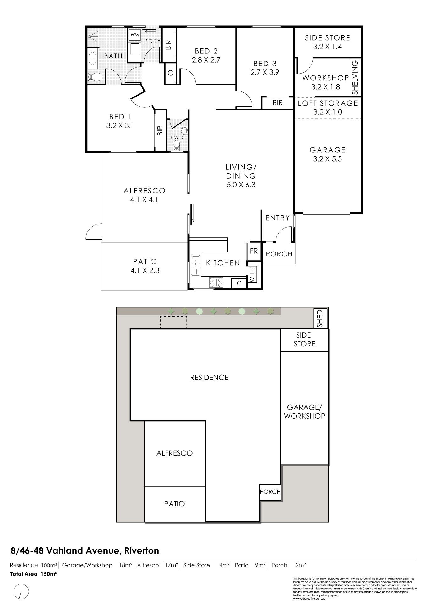
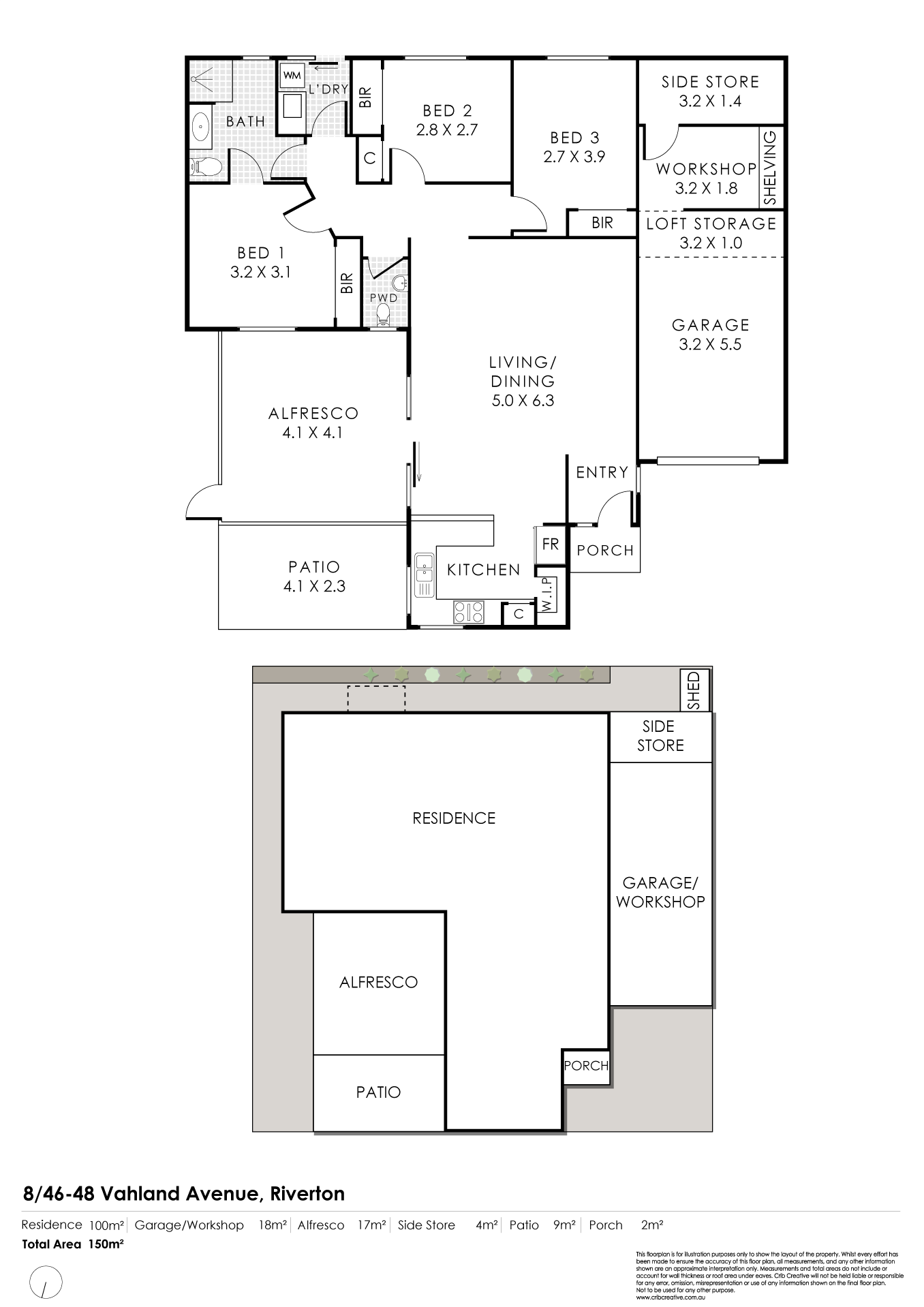
The home has just been repainted, and is light and bright inside. Stepping inside, you are welcomed into a spacious open plan living and dining area. Adjoining this area is the kitchen which is well appointed with stone bench top and quality appliances. 

Bedrooms are well proportioned and the master bedroom features a semi-ensuite. Two toilets are available for convenience. The ducted refrigerated air con system keeps you comfy throughout the year. Apart from the storage area in the garage, an outdoor storeroom comes in handy for your additional storage needs.

Live outside in the alfresco with a cup of tea and book. The backyard is low maintenance. The complex has only eight units and is conveniently located with public transport on the street. The villa is located at the rear and away from the road noise. The property is located within the Rossmoyne Senior High School zone. Only one occupant needs to be 55 years old or over.

A fabulous home for you to retire happily in.

Features include:
Within Rossmoyne Senior High School zone
Convenient location with easy access to public transport on the street
Rear villa away from road noise
Freshly repainted
Spacious living & dining with gas bayonet for heating
Kitchen well appointed with stone bench top & quality appliances 
Master bedroom features semi-ensuite & built-in wardrobe 
Two other bedrooms both with built-in wardrobes 
Two toilets
Gas hot water storage system
Ducted refrigerated air con system
Alfresco & patio for outdoor living 
Security window shutters to bedrooms
Solar panel system
Outdoor storeroom
Single garage with automatic door & storage area
Self-managed, well maintained small complex of 8 units
Strata levy $600 bi-annually (6 months)
Minimum 1 occupant must be 55 years old or over
Strata title 215 sqm block approx. 

 

Disclaimer: All information contained has been prepared for advertising and marketing purposes only and is not intended to form part of any contract. Whilst every effort is made for the accuracy of these information, which is believed to be correct, neither the Agent nor the client nor servants of both, guarantee their accuracy and accept no responsibility for the results of any actions taken, or reliance placed upon this document. Interested parties should make independent enquiries and rely on their personal judgement to satisfy themselves in all respects.

3 1 1 215m2
Address Unit 8, 46-48 Vahland Avenue, Riverton
Price Fr $799,000
Property Type Residential
Property ID 2015
Category House
Land Area 215m2

Inspections

  Sunday 3 May 1:30 PM - 2:00 PM

Agent Details

Raymond Chen photo

Raymond Chen

0432 624 120
View Profile