Just Listed

8 Hertford Close, Bull Creek

IMMACULATE HOME IN OBERTHUR ZONE ON POTENTIALLY SUBDIVIDABLE CORNER BLOCK!

This immaculate family home is set within the highly sought after Oberthur Primary School and Willetton Senior High School zones. The property is conveniently located within walking distances to major amenities including the bustling Southlands shopping centre, local shops on Parry Ave, schools, public transport and parks.

The property is zoned R20, situated at a corner lot and is potentially subdividable subject to approval by relevant authorities.

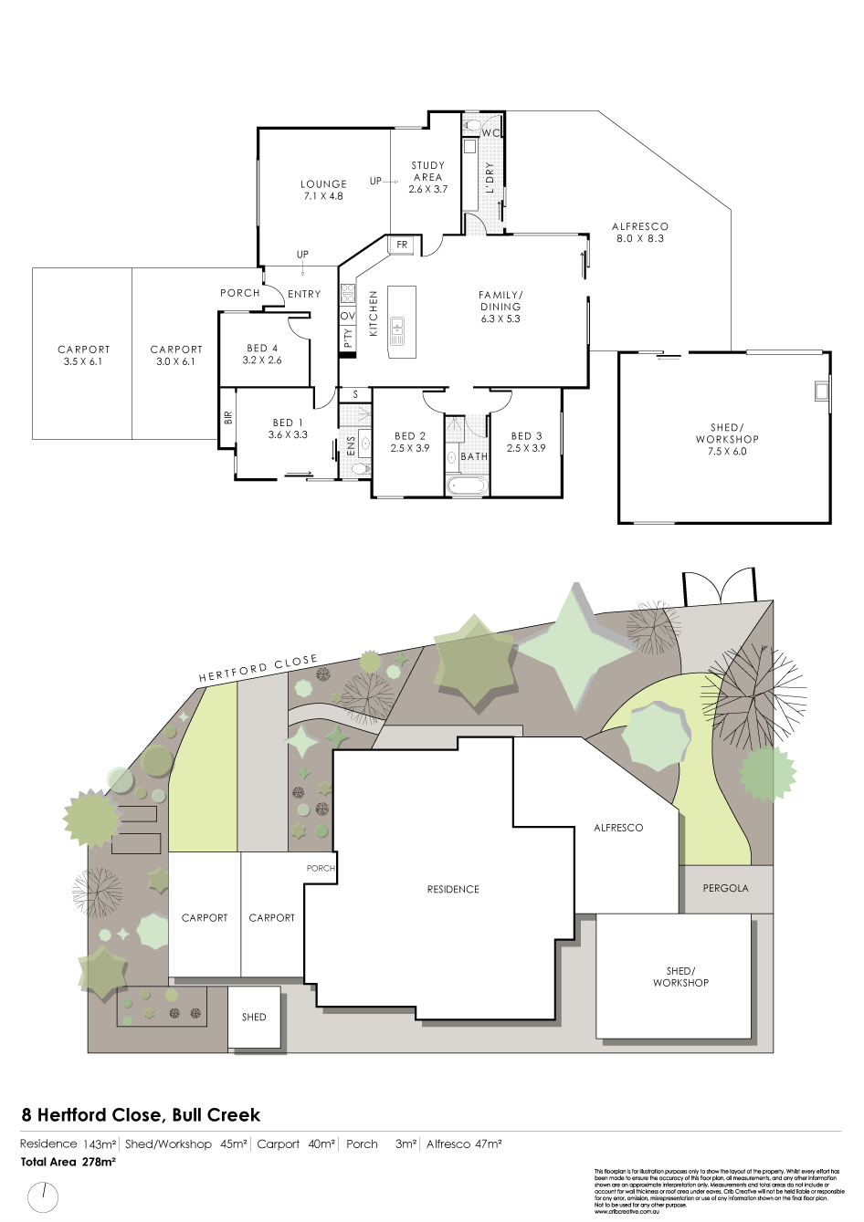
Inside, entertain your friends in the spacious front lounge. A large open plan area at the rear of the home allows the family to have meals and live together in the evenings. The bedrooms are well proportioned and the master bedroom features an updated ensuite. The stunning renovated kitchen is well appointed with stone bench top and quality appliances. A custom skylight above the island bench adds light and warmth to the area.

Enjoy living outdoors in the large patio surrounded by beautiful, thriving gardens. The large 3 phase powered, air conditioned workshop would be perfect for tooling work or for use as a home office, gym, games or storeroom. Side vehicular gate allows access to the workshop if needed. 

The owner has enjoyed living in the property for over four decades. Make this your forever home today.

Highlights include:
Within highly sought after Oberthur Primary School zone & Willetton Senior High School
Short walking distances to parks, schools, shops on Parry Ave & public transport
Close proximity to Southlands shopping centre, Bull Creek Central, Fiona Stanley Hospital, Murdoch University & Murdoch Train Station
Spacious lounge & dining
Large open plan layout to the rear
Family room & meals
Renovated kitchen features quality appliances including gas cook top, pyrolytic oven & stone bench top
Custom skylight to kitchen
Master bedroom features built-in wardrobe & updated ensuite
Split air con units to master bedroom, family room & workshop
Large NBN ready, 3 phase powered workshop with plumbed sink
Patio for outdoor living
Bore reticulation
Gas instantaneous hot water system 
Side vehicular gate at the rear
Double carport
712 sqm (approx.) green title block
Zoned R20 corner block with subdivision potential subject to approval from relevant authorities

Disclaimer: All information contained has been prepared for advertising and marketing purposes only and is not intended to form part of any contract. Whilst every effort is made for the accuracy of these information, which is believed to be correct, neither the Agent nor the client nor servants of both, guarantee their accuracy and accept no responsibility for the results of any actions taken, or reliance placed upon this document. Interested parties should make independent enquiries and rely on their personal judgement to satisfy themselves in all respects.

4 2 2 712 m2
Address 8 Hertford Close, Bull Creek
Price Fr $1.75m
Property Type Residential
Property ID 2003
Category House
Land Area 712 m2

Inspections

  Saturday 4 April 12:30 PM - 1:00 PM

Agent Details

Raymond Chen photo

Raymond Chen

0432 624 120
View Profile