Just Listed

NEAR NEW WHSZ HOME!

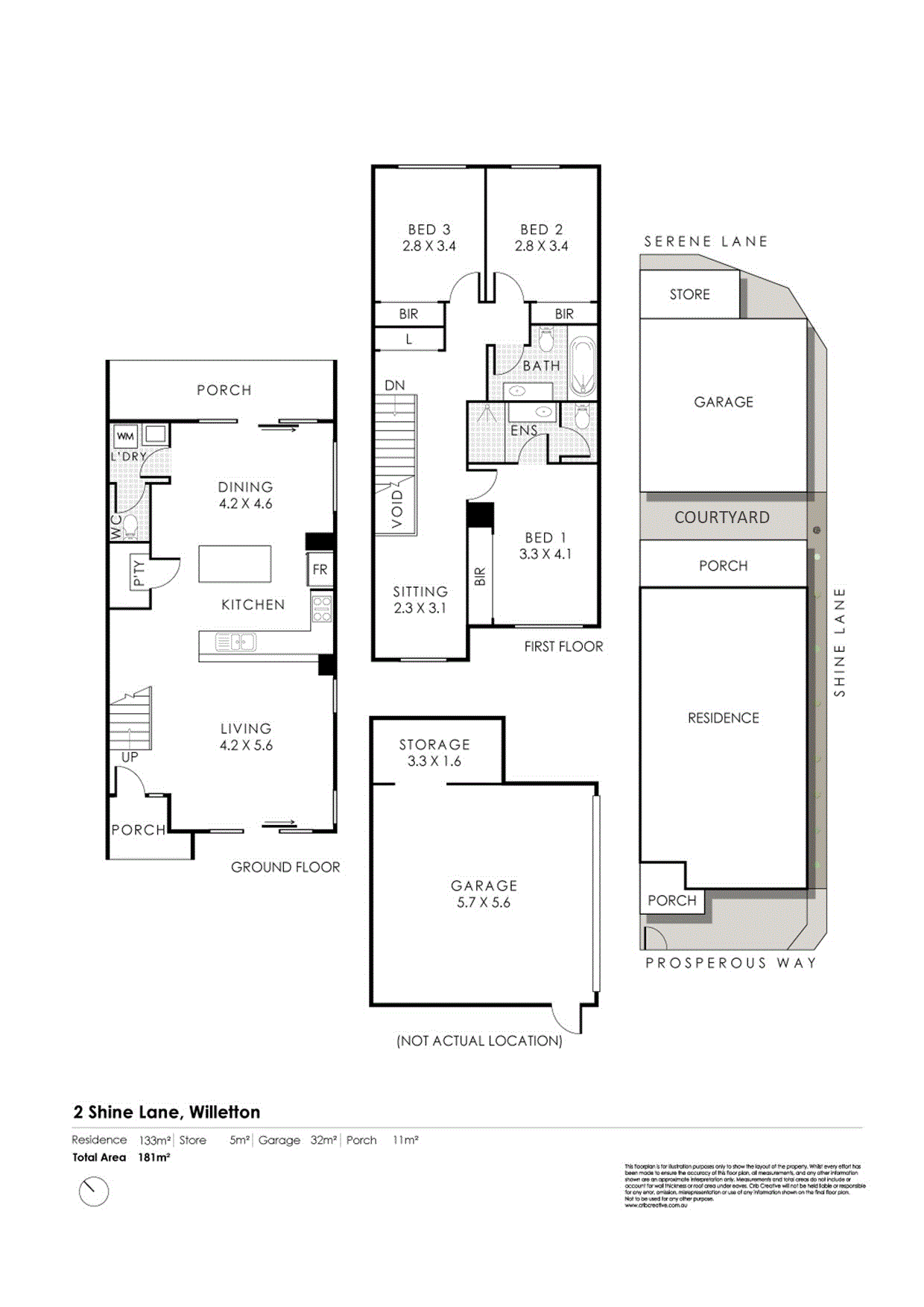
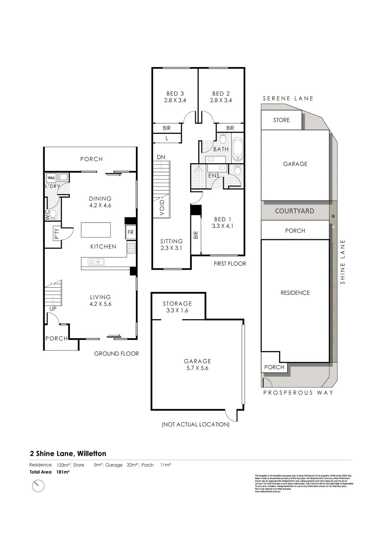
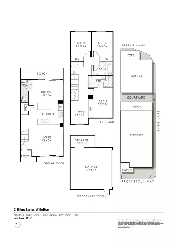
Completed this year, this near new double-storey three bedroom, two bathroom home is a perfect entry point property for those looking for a newly built home in the Willetton Senior High School zone.

Stepping inside, you are welcomed into a spacious open plan area where your family can live and dine together. The fabulous kitchen is well appointed with stainless steel appliances, generous cabinet storage space and stone bench top. A second living retreat area on the 1st floor caters for flexible living. Bedrooms are spacious and come with wardrobes. A third toilet is available for added convenience.

The ducted refrigerated air-con system keeps you comfortable during the year. The storage area in the garage and understairs store provide plentiful internal storage space.

Simply a great easy care home for a growing family!

Highlights include:
Within reputable Willetton Senior High School & Rostrata Primary School zones
Spacious open plan layout
1st floor living retreat
Master bedroom comes with built-in wardrobe & en-suite 
Two minor bedrooms feature built-in wardrobes
Common bathroom comes with 3rd toilet
Chef’s kitchen well appointed with stone bench top, island breakfast bench, generous cabinet storage space, gas cook top & undermount exhaust
LED down lights
Ducted zoned refrigerated air con system
Gas instantaneous hot water system
Double garage with automatic door & storage area
163 sqm block approx.

Disclaimer: All information contained has been prepared for advertising and marketing purposes only and is not intended to form part of any contract. Whilst every effort is made for the accuracy of these information, which is believed to be correct, neither the Agent nor the client nor servants of both, guarantee their accuracy and accept no responsibility for the results of any actions taken, or reliance placed upon this document. Interested parties should make independent enquiries and rely on their personal judgement to satisfy themselves in all respects.

3 2 2
Address 2 Shine Lane, Willetton
Price Early $1M
Property Type Residential
Property ID 1974
Category House

Inspections

  Sunday 12 October 1:30 PM - 2:00 PM

Agent Details

Raymond Chen photo

Raymond Chen

0432 624 120
View Profile