54 Tudor Avenue South, Riverton

NEW PRICE! ZONED R30 POTENTIALLY SUBDIVIDABLE RHSZ HOME!

An idyllic riverside lifestyle awaits you here in this easy care double storey Rossmoyne Senior High School zoned home. The Canning River foreshore is only approximately 700 m away. Commuting for work or school is hassle free too with access to Leach Highway just round the corner. Your kids can easily walk to Riverton Primary School or Queen of Apostles School across the road.

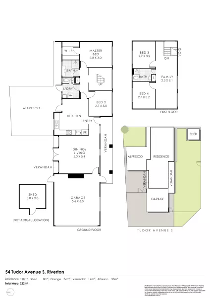
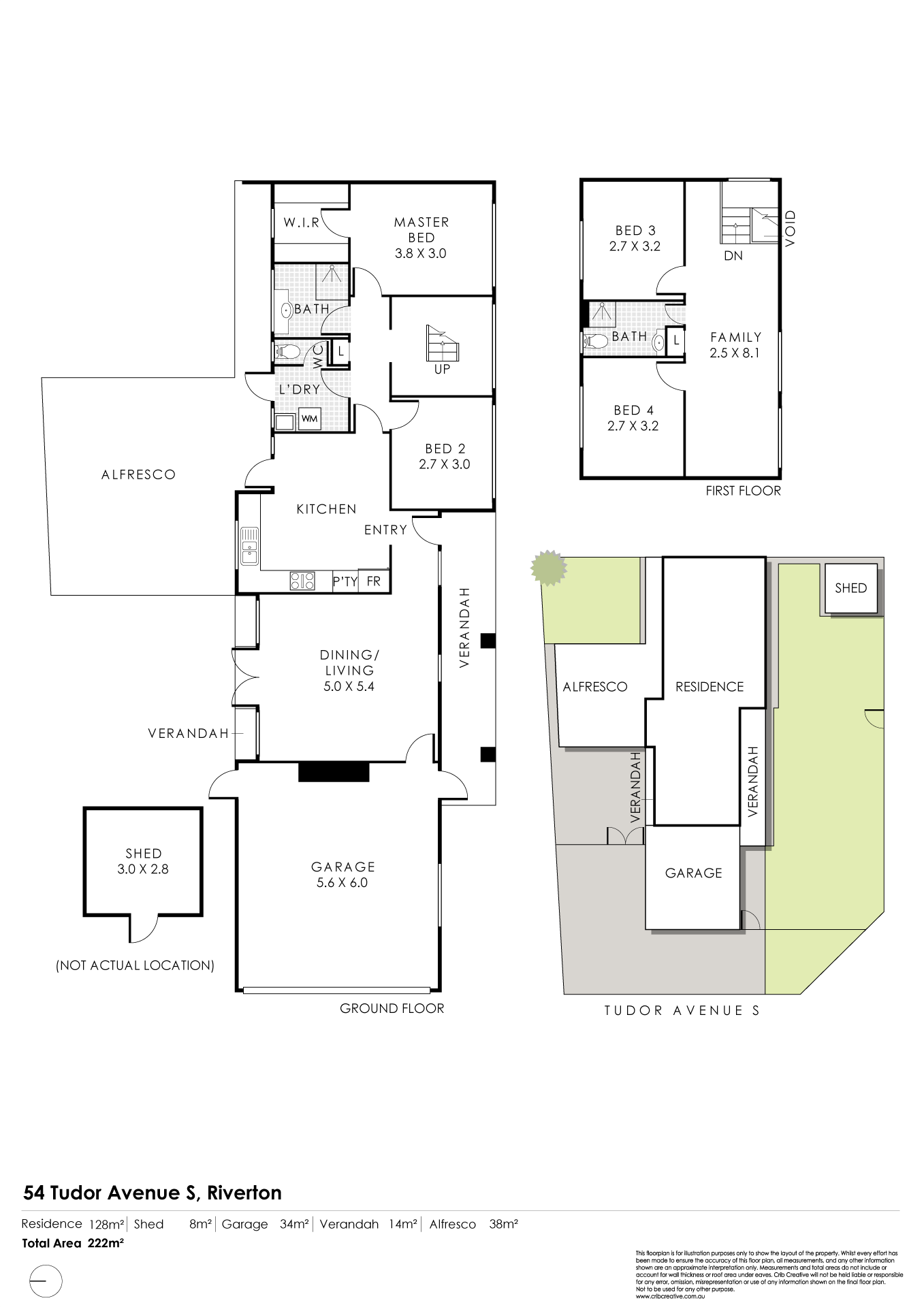
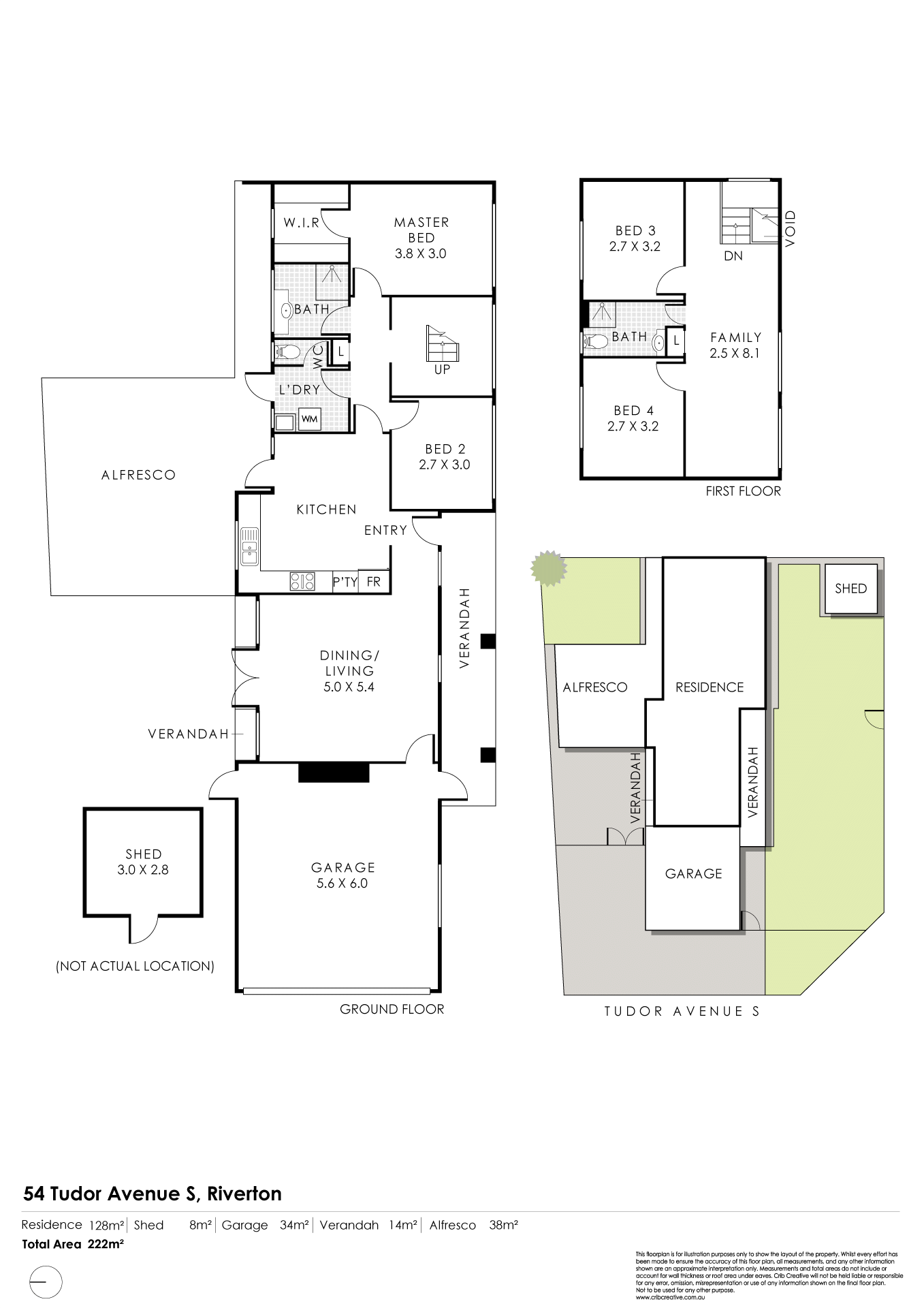
The block has a block size of 546 sqm approximately. It is zoned R30 and located at a corner. The block is potentially subdividable subject to approval by relevant authorities.

Internally, the home allows for flexible living for the family with living rooms found on both floors. The bedrooms are well proportioned. The updated kitchen is well appointed with quality appliances including SMEG gas cook top and oven, and generous cabinet storage. Two split air con units will keep your family comfortable through the seasons.

The family can enjoy living outdoors in the easy care front or back yards. For security and privacy, there is a boundary fence around the front of the block. 

Brimming with potential, secure this wonderful home for your family today!

Highlights include:
Within Rossmoyne Senior High School & Riverton Primary School zones
Close proximity to Riverton Primary School, Queen of Apostles Primary School, Canning River, Riverton Library, Riverton Forum & Leisureplex
Spacious lounge & dining
First floor living retreat
Updated kitchen well appointed with SMEG gas cook top & oven, Fisher & Paykel dishwasher & generous cabinet storage space
Ground floor master bedroom features walk-in wardrobe
Good sized minor bedrooms
Split air con units to living areas & one wall unit (cooling only)
Gas instantaneous hot water system
Rendered exterior walls
Low maintenance yards
Automatic bore reticulation
Double garage with automatic door
Zoned R30 green title 546 sqm approx. corner block 
Potentially subdividable subject to approval from relevant authorities

Disclaimer: All information contained has been prepared for advertising and marketing purposes only and is not intended to form part of any contract. Whilst every effort is made for the accuracy of these information, which is believed to be correct, neither the Agent nor the client nor servants of both, guarantee their accuracy and accept no responsibility for the results of any actions taken, or reliance placed upon this document. Interested parties should make independent enquiries and rely on their personal judgement to satisfy themselves in all respects.

4 2 2 546 m2
Address 54 Tudor Avenue South, Riverton
Price $1.5 m
Property Type Residential
Property ID 1971
Category House
Land Area 546 m2

Inspections

  Saturday 1 November 1:30 PM - 2:00 PM

Agent Details

Raymond Chen photo

Raymond Chen

0432 624 120
View Profile