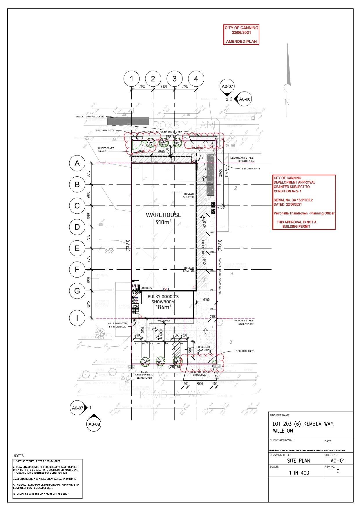
6 Kembla Way, Willetton

UNDER OFFER!!

FANTASTIC OPPORTUNITY!

This huge vacant parcel of land is a rare find in the area. The block has an area of 2079 sqm and has two frontages on either ends to Kembla Way & Roxby Lane (subject to approval by relevant authorities). It has a wide frontage width of 28 m approximately and is rectangular in shape.

The block has been cleared now and it has a development application approved for a warehouse with an area of 910 sqm and bulky goods showroom at the front. The property is zoned ‘Light Industry’.

The property has easy access to Kwinana Freeway, Roe Highway and Leach Highway, and is located close to public transport and shops on High Rd.

This is a fantastic opportunity to secure a large block of land in an excellent suburb to build your business.

All reasonable offers presented to vendor.

 

Disclaimer: All information contained has been prepared for advertising and marketing purposes only and is not intended to form part of any contract. Whilst every effort is made for the accuracy of these information, which is believed to be correct, neither the Agent nor the client nor servants of both, guarantee their accuracy and accept no responsibility for the results of any actions taken, or reliance placed upon this document. Interested parties should make independent enquiries and rely on their personal judgement to satisfy themselves in all respects.

2,079m2
Address 6 Kembla Way, Willetton
Price SOLD for $1,280,000
Property Type Commercial
Property ID 1672
Commercial Listing Type Sale
Category Land/Development
Land Area 2,079m2

Agent Details

Raymond Chen photo

Raymond Chen

0432 624 120
View Profile