Unit 1, 55 Riley Road, Riverton

UNDER OFFER!!

NEAT & TIDY RHSZ HOME!

Built circa 2002, this neat and tidy family home would be perfect for the growing family looking for a newer, easy care home in a good location.

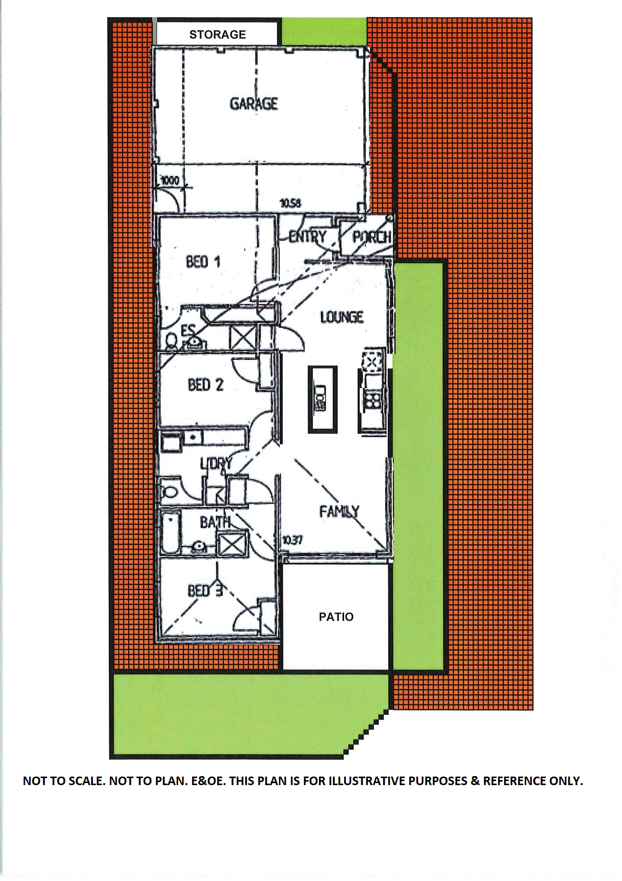
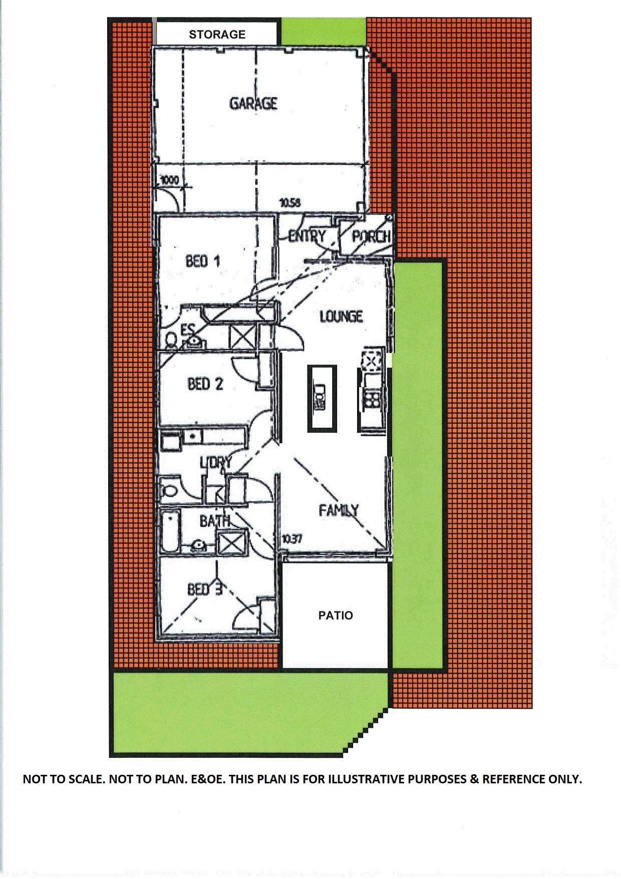
Internally, the vendor has recently renovated the kitchen and made it the centrepiece of the house. The stunning new kitchen features beautiful stone bench top, a large island bench that also serves as a breakfast or meals bar, quality appliances and lots of storage cabinets. The two bathrooms were also previously renovated and feature full height wall tiling. The bedrooms are spacious in size and come with built-in wardrobes.

The property is located within the excellent Rossmoyne Senior High School zone and is conveniently located close to river foreshore for your evening walks, Riverton Primary School, Riverton Forum and local shops on Riley Rd for your shopping needs, Riverton Library and Leisureplex recreation centre.

Other features include double garage, ducted evaporative cooling system and two split air-con units. The complex is secured by automatic gate and boundary fences.

All reasonable offers considered. Don't miss out!!

Highlights include:
Within Rossmoyne Senior High School & Riverton Primary School zones
Short walking distances to Riverton Forum shopping centre, Leisureplex recreation centre, Riverton Library, river foreshore, local shops along Riley Rd & bus stops
Lounge & dining areas
Recently renovated centrally located stunning kitchen with stone bench top, large island with breakfast bar, quality appliances including gas cook top & plenty of storage cabinets
Master bedroom features built-in wardrobes & renovated ensuite with full height wall tiling
Two other good sized bedrooms with built-in wardrobes
Split air-con units to master bedroom & one bedroom
Ducted evaporative cooling system
Renovated common bathroom comes with bath & shower; features full height wall tiling
Plenty of internal & external storage
Windows come equipped with automatic shutters
Gas hot water storage system
Large pitched patio for outdoor living
Double garage with automatic door
Complex secured by automatic gate & boundary fences
235 sqm strata triplex

 

Disclaimer: All information contained has been prepared for advertising and marketing purposes only and is not intended to form part of any contract. Whilst every effort is made for the accuracy of these information, which is believed to be correct, neither the Agent nor the client nor servants of both, guarantee their accuracy and accept no responsibility for the results of any actions taken, or reliance placed upon this document. Interested parties should make independent enquiries and rely on their personal judgement to satisfy themselves in all respects.

3 2 2 235 m2
Address Unit 1, 55 Riley Road, Riverton
Price SOLD for $580,000
Property Type Residential
Property ID 1505
Category Unit
Land Area 235 m2

Agent Details

Raymond Chen photo

Raymond Chen

0432 624 120
View Profile